Contact
Studio AVK
Interior design, architectural drafting & archviz
Contact
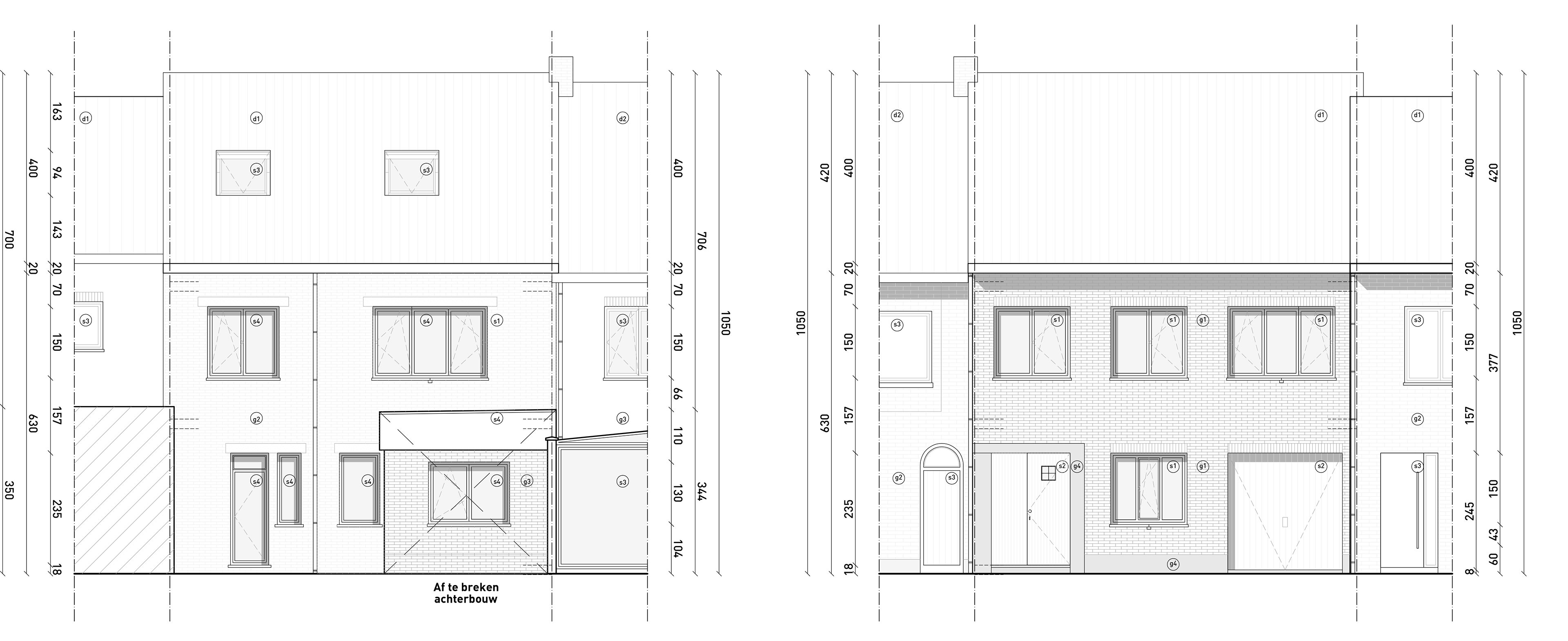
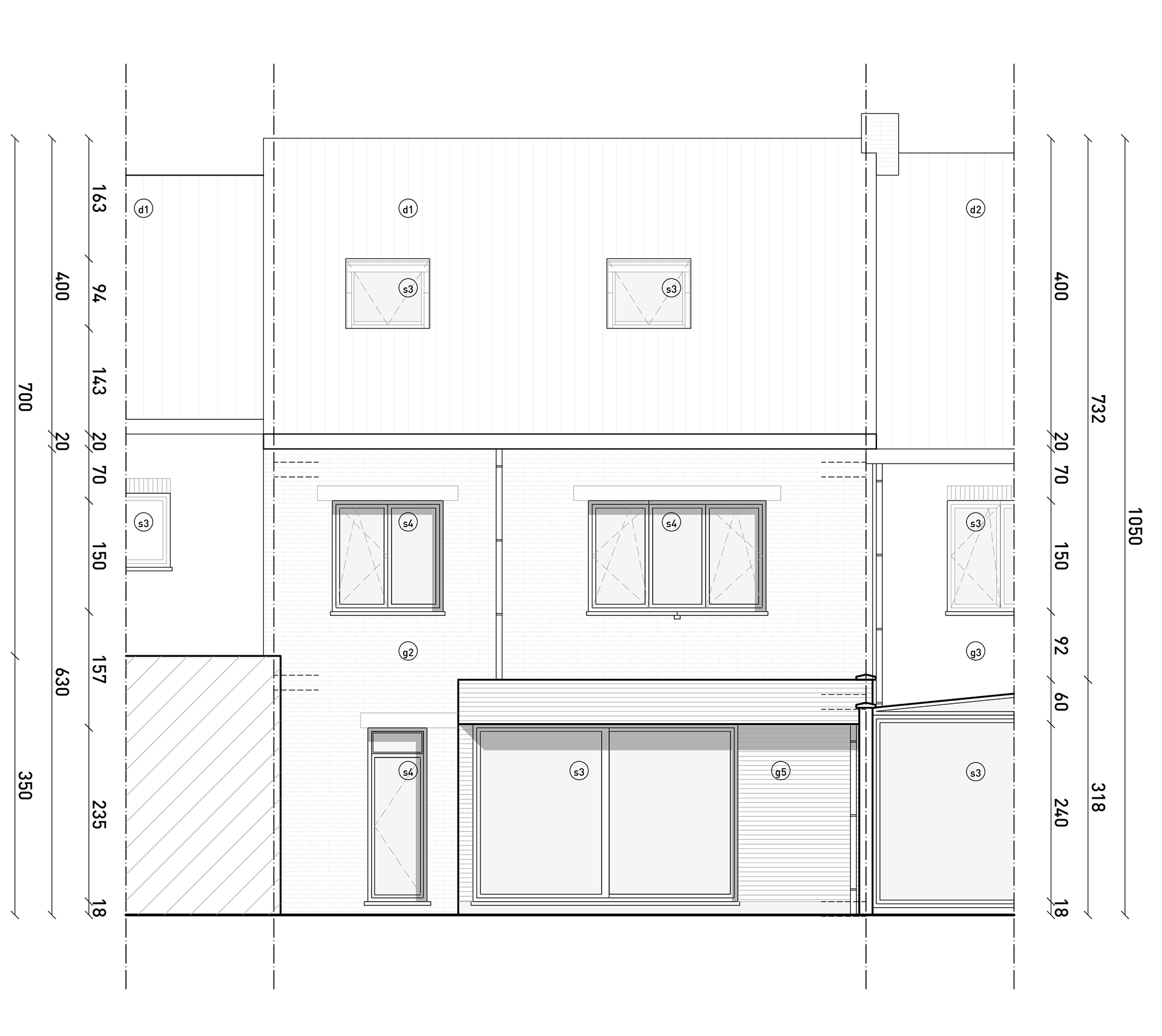
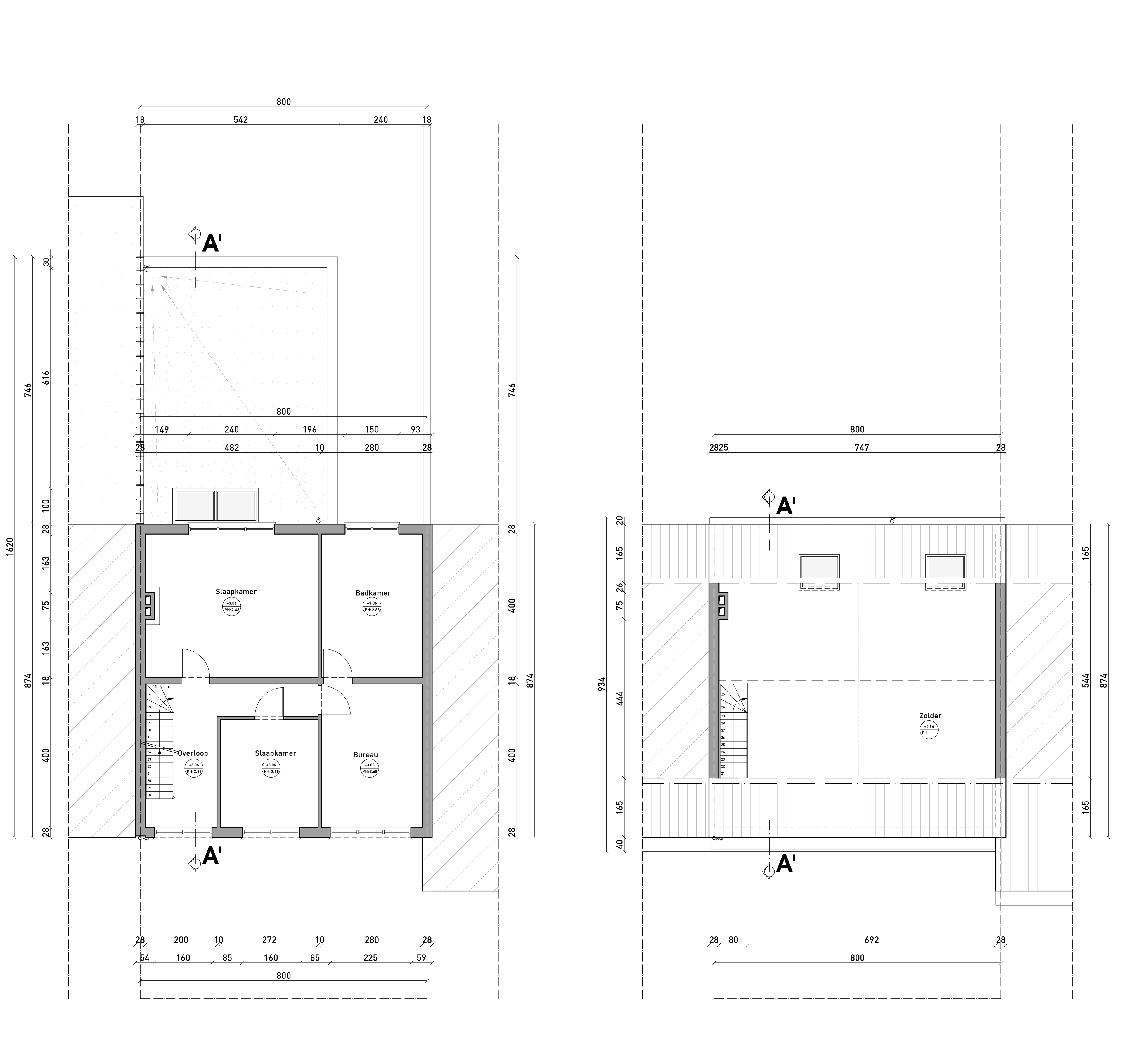
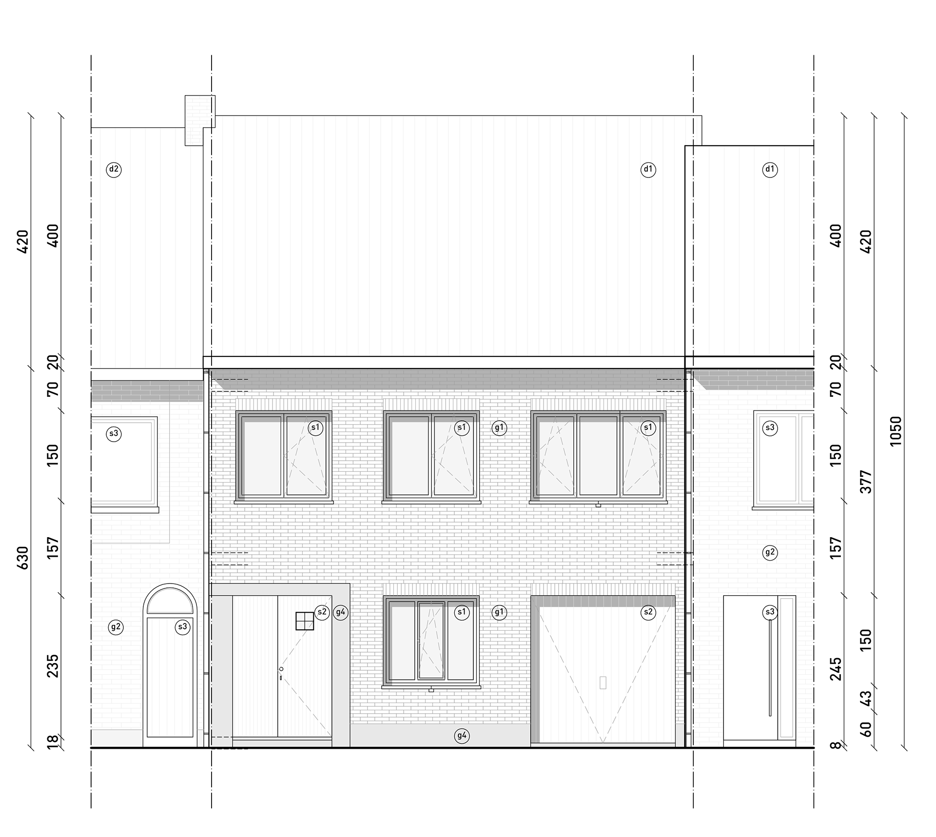
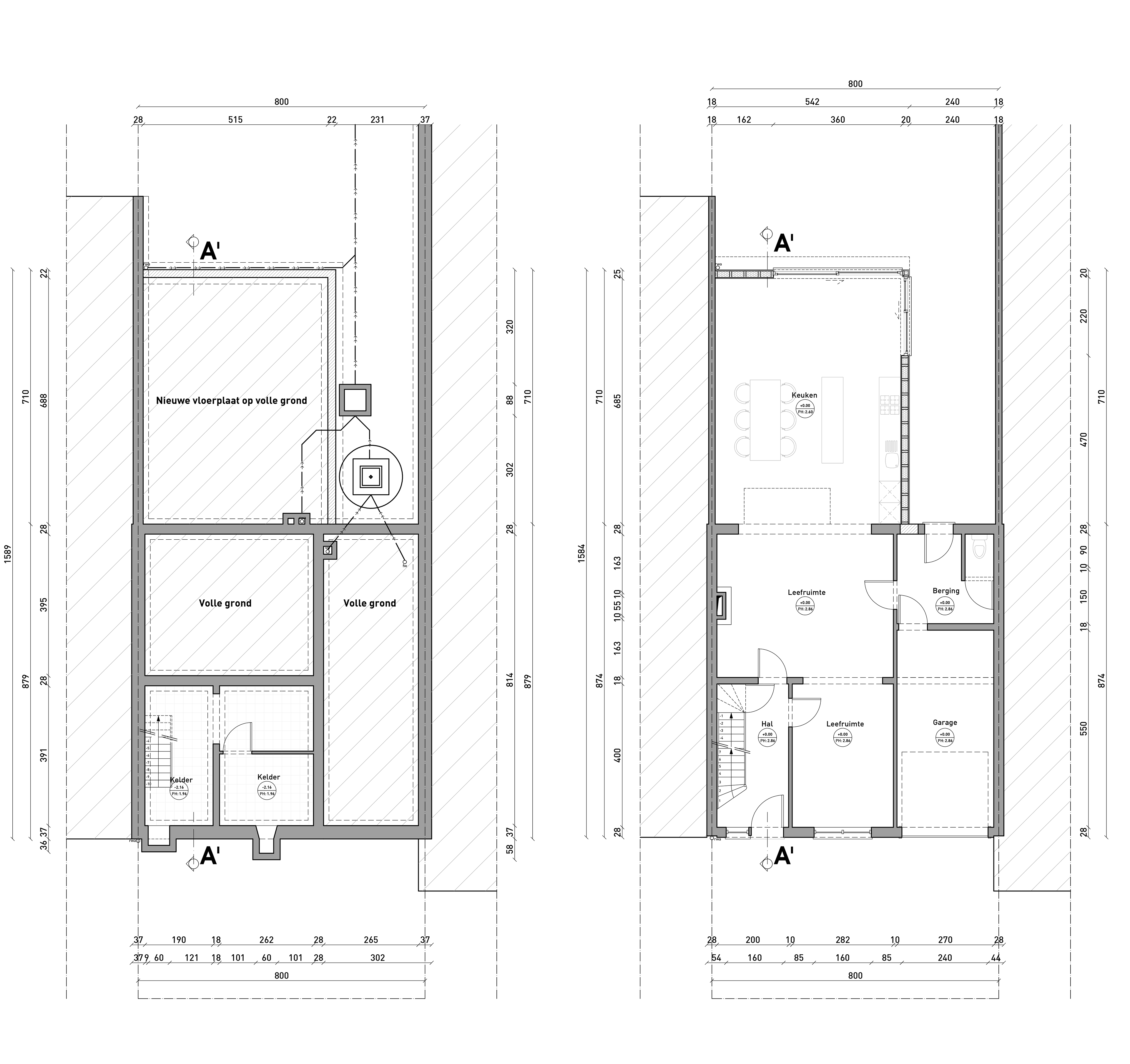
Renovation of a single-family house DWG Drawings
Request for a renovation
of a single-family house
Location: Belgium
Year: 2020
cooperation: arne@zoominterieur.be
↑
Back to Top